2024.03.11 11:32
【中山家电】好消息!世耀智创产业园第二期火热招商
文章来源:中山市家电行业协会公众号
点击上方,轻松关注!!招商世耀智创产业园二期项目火热招商可租可售 世耀智创产业...
点击上方,轻松关注!!
招商
世耀智创产业园
二期项目
火热招商
可租
可售
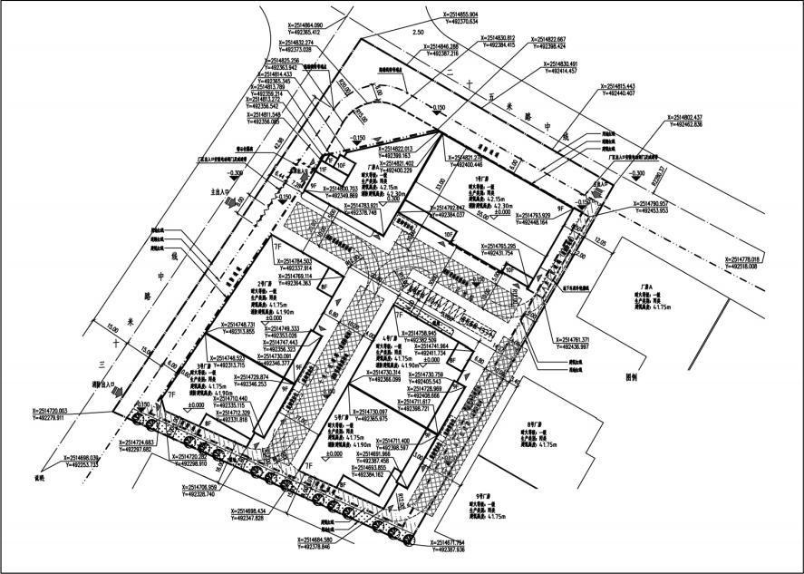
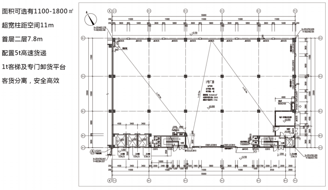
世耀智创产业园位于南头镇光明北路30号,占地约51亩,是经中山市政府批准实施的“三旧”改造项目,该项目于2020年6月份动工,分两期开发,第一期面积:61000㎡,已完工并办好出证手续,企业进驻率达90%,第二期面积:65000㎡,计划于2022年7月份竣工交付使用。
二期园区的招商现正开始,计划打造成集高端展厅、仓储物流、电商办公、设计研发、互联网、创意办公于一体的青年创业孵化基地。
我们的优势
一
地理位置优越
中山市南头镇位于粤港澳大湾区中心位置,处于广佛肇经济圈,珠中江经济圈和深莞惠经济圈重叠处。南头镇是以家电产业为特色的新兴工业城镇,产业链条完善,实体经济基础好、潜力足、回旋余地大,是中国家电产业基地、中国家电品牌基地、国家外贸转型升级基地。
二
交通便利
交通区位优势明显,广珠西线高速、广珠城际轨道都在南头设有站点,主干道与105国道相连,建设中的广中江高速、南沙港铁路将进一步加速南头融入湾区交通大网络。园区离广珠西线高速、广中江高速、105国道、广珠城际轻轨南头站3公里范围内。
三
提供增值服务,助企业做大做强
园区为进驻企业提供增值服务,对接专业咨询机构、培训机构、中介服务机构、律师事务所、人力资源咨询机构、财务管理咨询机构等公司,为园区企业提供政策、专利、质量认证、投资理财、法律咨询、优惠政策和扶持资金等一系列服务,为帮助企业发展提供助力。
四
建筑面积大,配套完善
园区占地50亩,规划建筑面积12.5万平方米,由1栋9层综合办公楼和11栋标准厂房组成。园区设有地下停车场,连露天车位380个。
联系方式
郭先生:18933306498
来源:中山市世耀智能科技有限公司
中山市家用电器行业协会
0760-22519221
www.zsjdxh.org
zsjdxh@163.com
中山市南头镇南头大道中59号
文章来源:中山市家电行业协会公众号
风险提示及免责条款
[温馨提示] 文章来源于中山市家电行业协会公众号,转载注明原文出处,此文观点与查生意无关,理性阅读,版权属于原作者若无意侵犯媒体或个人知识产权,请联系我们,本站将在第一时间删掉 ,查生意仅提供信息存储空间服务。


