2024.03.12 09:49
合肥原柴油机厂将建中国家电博物馆
文章来源:安徽省信息家电行业协会公众号
2019年5月6日,安徽省信息家电行业协会副会长兼秘书长周保宇一行,前往合肥市金...
2019年5月6日,安徽省信息家电行业协会副会长兼秘书长周保宇一行,前往合肥市金寨路十五里河(原柴油机厂),就即将开建的中国家电博物馆进展情况调研。
合肥作为中国“家电之都”,世界第一台VCD、中国第一台窗式空调机均诞生与此。近年各大家电巨头更是纷纷扎堆落户合肥。作为中国白色家电产量市场份额最多的城市,家电产业已经成为合肥的一个名片。可以想象,未来在这个独具特色的博物馆里,各色家电“古董”罗列,会像讲故事一般,藏着时代变迁蜕变的历史印记,将给参观者带来不一样的感受。
从投资方合肥罍街文化旅游发展有限公司了解,合肥包河区规划建设中国家电博物馆工程,选址已经定在十五里河片区,将由老的合肥柴油机厂地块“脱胎换骨”而来。将来这里有望成为体味“家电之都”魅力的好去处。
合肥规划建设的中国家电博物馆工程位于金寨路310号,东至常青街,西至白马尖路,南至龙井峡路,北至天堂寨路。
日前《中国家电博物馆室内陈展设计施工一体化》招标文件在合肥公共资源交易中心发布,意味着中国家电博物馆即将在合肥正式开建。
根据招标文件显示:
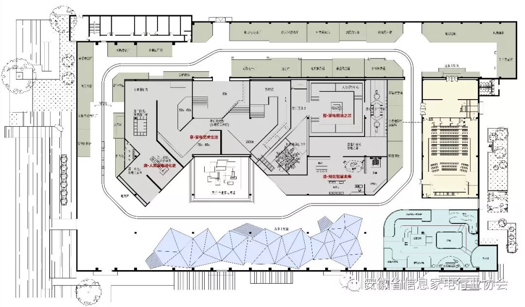
此项目为改造项目,合肥柴油机厂位于十五里河中段片区,总用地面积约42000㎡,会客厅建筑面积约800㎡,圆形建筑岁月留声面积约80㎡。其中合肥柴油机厂部分厂房改造为家电博物馆及会客厅等,博物馆的室内陈展设计施工一体化。博物馆共一层,层高最高点12.2m,最低点5.4m,建筑面积约12000㎡。其余为室外景观。按照计划,工程总投资(建安投资额)约10000万元,工程计划施工工期约为5个月。
此外,根据网上流出合肥柴油机厂区域改造的规划图,占地超450亩,具体规划有:艺术园区184.5亩;双创园区54.8亩;保留建筑改造邻里中心62.5亩;回迁安置小区69.8亩,11.6万方;公园27亩;新建小学53亩。
其中最引人注意的莫过于艺术园区的规划建设和,11700㎡的美术馆、1800㎡的书店、3100㎡监狱主题酒店、还有艺术商店、文坊、生活美学馆等,据了解中国电器博物馆就在其中。
另外文创园区内还有电影片场体验园、让你足不出户就能逛“合肥横店”、潮玩基地、玻璃屋故事馆、影视文化空间,也是合肥弄潮儿拍照、打卡的好去处,未来这儿将成为“全合肥潮人集聚地”。
由于该片区紧靠政务区,规划中也将为政务商务人士提供更多的需求,34.6亩城市绿地雕塑中心、5430㎡艺术转换中心、1957㎡穹顶之下多功能厅,满足商务人士花园办公和商务会客的功能。
文章来源:安徽省信息家电行业协会公众号
风险提示及免责条款
[温馨提示] 文章来源于安徽省信息家电行业协会公众号,转载注明原文出处,此文观点与查生意无关,理性阅读,版权属于原作者若无意侵犯媒体或个人知识产权,请联系我们,本站将在第一时间删掉 ,查生意仅提供信息存储空间服务。


