2024.03.21 21:33
高净值人群理想居所样本 |高雅轻奢的艺术品质家
文章来源:北京家居行业协会公众号
点击上方“北京家居行业协会”可快速关注! 业主故事 业主对生活有不凡的品位追...
业主故事
业主对生活有不凡的品位追求,喜好现代简约、低调轻奢而细腻的设计风格。“轻”是一种优雅态度,却无损高贵与雅致的生活;“奢”是一种小资情调,追求品质、精致、却不失平淡与朴素的状态。
屋宅信息
城市:深圳
楼盘:太古城
户型:平层
面积:180㎡
风格:现代风格
主材:瓷砖,大理石,艺术涂料,皮革,多层木地板
设计构想
设计师:余增
褪去繁复,优雅重生,用阵列对称的陈设布局营造空间仪式感。让空间引导生活,潜移默化。融入自然元素的陈设品,让空间自然灵动。
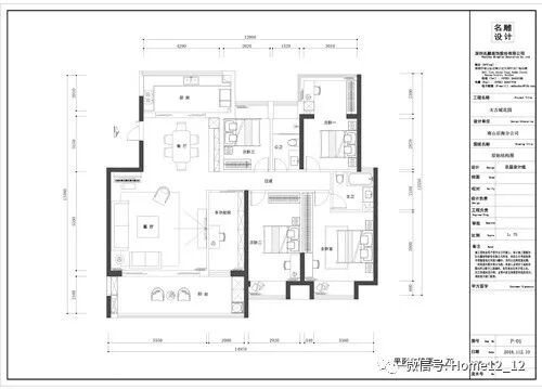
户型平面
空间赏析
空间设计在材质的铺陈和搭配上表达了现代设计的特质,使得空间层次分明。到处弥漫着一种高雅气息、艺术的光影斑驳,每一个节点似乎都在诉说着一个故事、一个真正还原生活本质的家。
客厅
大面积清新白搭配浅灰蓝地毯和装饰画奠定了客厅优雅温馨的基调。现代简洁家具的方正几何造型使空间兼具视觉层次感与艺术感,水晶吊灯洒下华丽光影,布艺沙发与石材茶几刚柔并济彰显典雅与时尚。
餐厅 & 厨房
灯饰造型精致活泼,有着温润如玉的质感与盈透的色泽白色与卡其色共同演绎轻奢之美带来曼妙的视觉享受。厨房以配套的象牙白色营造清新优雅氛围。
主卧
米黄色调的床品、家具与深蓝色布艺窗帘形成柔和的对比色,视觉上形成层次感,空间上彰显温馨自然氛围。
女孩房
嫩粉色与象牙白是公主色的代表,粉白相间凸显清新优雅;大面积淡绿色墙纸点亮了整个卧室空间,避免造成单调。
男孩房
海军蓝是大胆勇敢而又沉稳的象征色,墙面保留了白色的本底,点亮空间同时彰显洁净整齐感,营造清新明亮的空间视觉。
书房
根据户型结构的狭长型特质打造条形的书房空间。以实用性为主,一整面墙做了一体式落地书柜与展示柜,采用白色调以形成空间在视觉上增大的效果。木色书桌营造了静谧氛围。
22年专注中大户型、豪宅设计
(免责声明:此文章来源于网络,版权归作者所有,若有版权问题请作者尽快告知我们,我们将尽快删除相关内容,表示歉意!)
文章来源:北京家居行业协会公众号
风险提示及免责条款
[温馨提示] 文章来源于北京家居行业协会公众号,转载注明原文出处,此文观点与查生意无关,理性阅读,版权属于原作者若无意侵犯媒体或个人知识产权,请联系我们,本站将在第一时间删掉 ,查生意仅提供信息存储空间服务。


