2024.03.21 21:33
房子要装修?水电改造做好了吗?
文章来源:北京家居行业协会公众号
点击上方“北京家居行业协会”可快速关注! 居家生活中,你有没有遇到过以下糟心事...
居家生活中,你有没有遇到过以下糟心事儿?用的好好的电突然跳闸、洗澡水迟迟不热、大功率电器不能同时使用、屋子里总有一处漏水、水电线路不够用或者位置不合适......遇到以上情况,多半是水管道或者是电线路出了问题。这种情况下,人们的心理活动通常分为以下几种:
1.再等等,一会就有热水了
2.*%$#&×@****(抱怨)
3.接个10米长、插孔多的插线板就够用了,我可真是个机灵鬼儿
4.估计是管道老化,要重新修一下了
从理性角度考虑,为了生活便利,能重修线路是最好。不过虽说“亡羊补牢,为时不晚”,但重新修水电线路毕竟是个大工程,要将房屋墙体凿开做翻新,劳力又伤财。所以为了减少麻烦,应尽量在装修前做好前期准备,规划好房屋水电施工。
在水电施工阶段,绕不开的话题自然是管道的规划和排布。关于房屋装修水电线路布局的要点,来听听专业设计师和工长怎么说?
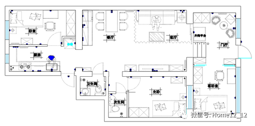
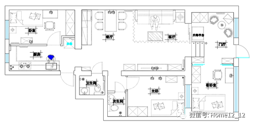
根据业主居住需要,本期视频中的老房要改造成三室两厅两卫一厨的格局。
强电点位示意图
弱电点位示意图
设计师在做各个空间的规划时,在水电布局方面都根据实际生活需要做了具体细致的考量;工长则在水电工艺方面保障施工质量。以下图示为视频中案例的重点改造说明:
厨房地下水:房子是一层住宅,因此地下水管道是重点改造的地方。原来的厨房用水直接排到户外,非常不卫生。改造后,将厨房用水以及其他水生活用水一并排放至生活用水排水井,与卫生间排水分开。
强电箱设置:由于日常生活中强电箱查看频率低,设置在冰箱上方不影响其他设施使用。强电箱排线布局:每根线管之间留出一公分左右的距离,以便在水泥砂浆涂抹环节能够将水泥砂浆涂到每个缝隙,保证以后墙体不开裂。
客厅:卫生间空间小,原本应放在卫生间的洗衣机放在客厅墙边侧,在上方设置烘干机。
客厅:电视柜预留电源较多。上方是电视主机强电,下方是备用电源。
在餐桌下方设置弱电箱。一方面能掩藏、美观度好;另一方面,放在餐桌下能够避免其他物体遮挡电箱,不会影响网络传输。
另:在强弱线交汇处应用了抗干扰工艺——用锡纸包裹隔开,抗干扰。
空调冷凝水处理:空调冷凝水处理办法——对水管做“S弯”处理,防止有异味。
今朝卫生间水管工艺:水管开槽后必须刷一层防水,防止卫生间的水渗透到隔壁家里。
水电改造是房屋装修最重要的基础工程,要尽量做到万全的考虑。一方面,考虑到水电改造属于隐蔽工程,今朝装饰的施工团队在装修过程中严盯施工品质;另一方面,为了方便后期维修,今朝装饰水电改造工艺遵循“水走顶、电走地”的原则,为业主打造最便利的居住环境。
相信看了本期视频,大家对老房的水电改造有了更进一步的了解。以后装房子前记得想一想,水电改造做好了吗?
(免责声明:此文章来源于网络,版权归作者所有,若有版权问题请作者尽快告知我们,我们将尽快删除相关内容,表示歉意!)
文章来源:北京家居行业协会公众号
风险提示及免责条款
[温馨提示] 文章来源于北京家居行业协会公众号,转载注明原文出处,此文观点与查生意无关,理性阅读,版权属于原作者若无意侵犯媒体或个人知识产权,请联系我们,本站将在第一时间删掉 ,查生意仅提供信息存储空间服务。


